GRÅBRÖDERSGRÄND
Residential / Mixed use

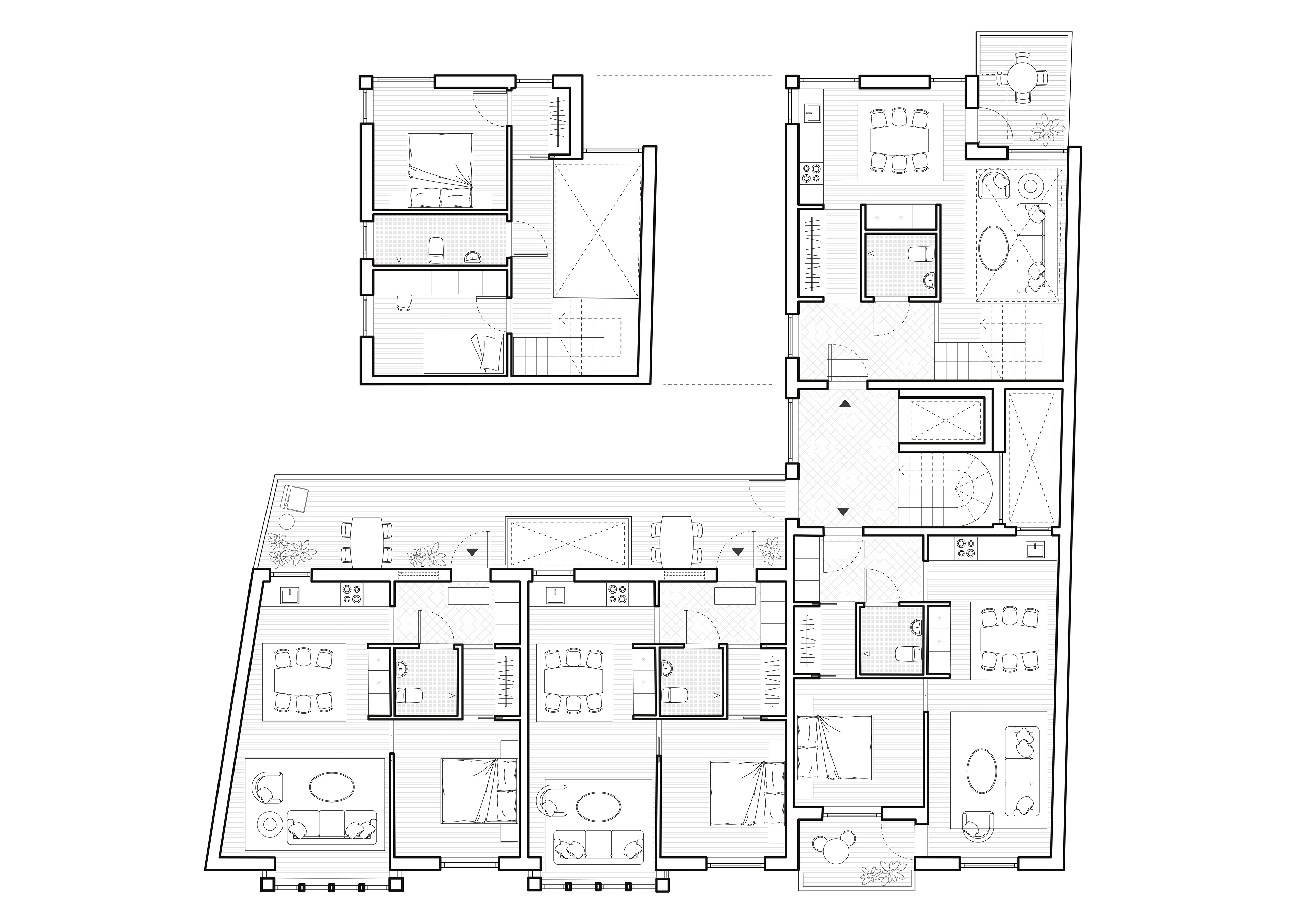
Nested in the heart of Lund, Gråbrödersgränd is a project that blends contemporary architecture with the timeless charm of its historic surroundings. The courtyard and ground floor are fully open to the public, creating an inviting and llively streetscape, while the upper levels offer privacy and tranquility for the residents. 

The building features 11 thoughtfully designed homes: 9 two room apartments (45-60 sqm) and two exclusive maisonette apartments (90 sqm). Each residence is crafted with attention to detail, combining comfort, functionality and understated elegance.Residents enjoy exclusive access to a rooftop terrace with stunning views of Lund’s cathedral, a serene winter garden and a communal venue for gatherings. Meanwhile, the basement ensures all practical amenities to support eneryday living. Gråbrödersgränd is more than a residence, it’s a place designed for cozy and social living Perfectly located in the city center, Gråbrödersgatan offers the ideal blend of convenience, comfort and community.

Sandra Erlandsson & Signe Rittfeldt
2024

You may also like

Back to Top